Вернуться к выбору квартиры

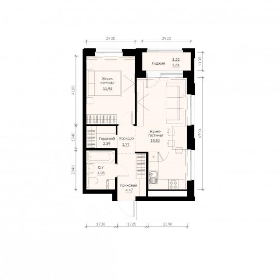
Однокомнатная квартира №209

Планировка квартиры
План этажа
Площадь 45,09 м2
Срок сдачи 1 квартал 2028 г.
Этаж/этажность 24/30
Отделка Под чистовую

8 239 371

Оставить заявку в отдел продаж

Варианты организации пространства